ModSpan is Christian-Bailey Agencies' exclusive home kit brand, designed specifically for Norfolk Island residents tackling local challenges like remote logistics and harsh weather—ideal for first-time homeowners, builders, and industry veterans.
ModSpan Kit Homes provide a practical and cost-effective alternative to traditional housing on Norfolk Island. Built using a durable structural portal frame system, they combine strength, flexibility, and efficient construction to create modern homes suited to island conditions and contemporary living.
Whether you are looking for a compact starter home or a larger customised design, ModSpan offers adaptable layouts that can be tailored to your site, budget, and lifestyle. Their streamlined construction process and robust steel structure make them a smart solution for those seeking quality, durability, and long-term value.

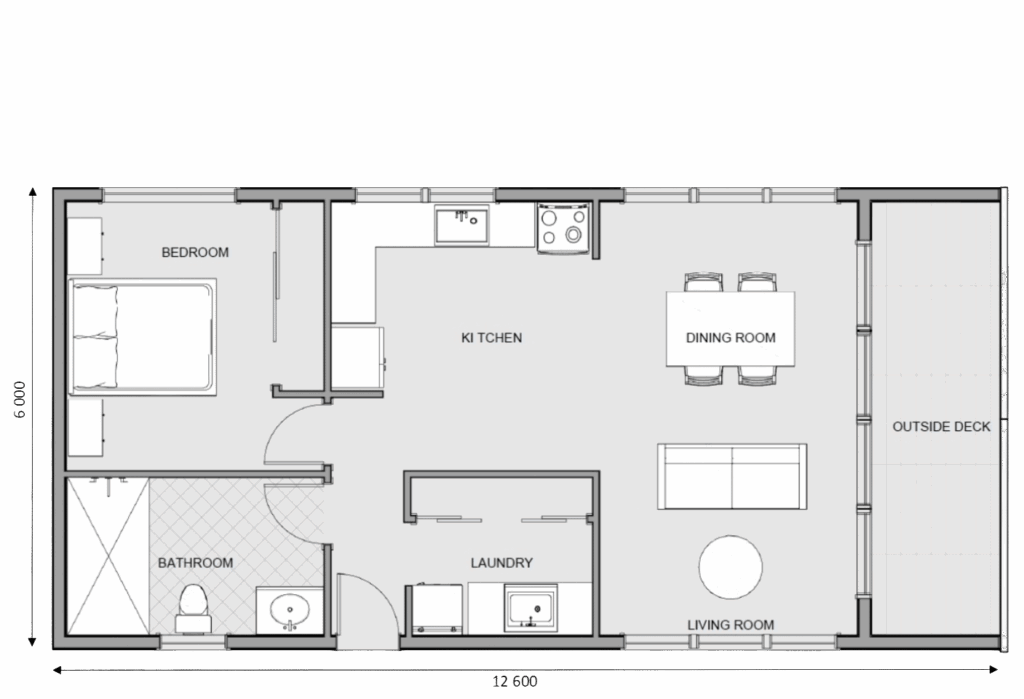
Choose from 1, 2, or 3 bedroom ModSpan home designs to suit your site, budget, and lifestyle.
Your Home, Your Way
ModSpan offers a selection of practical starter home models designed to provide efficient, modern living with strong value per square metre. Current options include one-bedroom and two-bedroom layouts, each designed with open living areas, functional floorplans, and outdoor deck space to suit a range of needs and lifestyles.
For those looking for something more tailored, ModSpan also offers flexible design options that allow for extensions, modified layouts, and fully customised homes. This gives clients the ability to begin with a standard model or develop a design that better suits their site, household requirements, and long-term plans.
What's Included?
Fast to build, durable, and tailored to your needs.
ModSpan starter kits include the key structural and external components needed to establish the home, along with the documentation required to move the project forward. Inclusions cover the structural portal frame system, building wrap, Colorbond® corrugated roof and wall cladding, aluminium windows and external doors, internal partitions, ceilings, wall linings, internal doors and trims, as well as council plans, engineering, assembly drawings, and freight to site.
The starter kit is designed to provide a strong and efficient foundation, while still allowing flexibility for clients to complete interior fit-out to suit their own preferences and budget. Items such as the concrete slab, floor coverings, kitchen, bathroom, laundry, plumbing, electrical installation, and painting can also be arranged separately or incorporated depending on the final scope of the project.
Structural Portal Frame System
The kit includes the main steel portal frame structure that forms the backbone of the home, providing strength, durability, and a practical base for efficient construction.
Roof and Wall Cladding
Building wrap, along with Colorbond® corrugated roof and wall cladding, is included to create the external shell of the home and help protect it from the elements.
Windows, Doors, & Entry Facade
The starter kit includes aluminium windows, external doors, a fully glazed front entry facade, and a timber-lined front entry to give the home a clean and modern finish.
Internal Building Components
Internal partitions, plasterboard ceilings, plasterboard or VJ board wall linings, an architectural feature wall, internal doors with door furniture, and internal trims are all included as part of the package.
Plans, Engineering & Freight
Council plans, engineering documentation, assembly drawings, and freight and delivery to site are included to help streamline the approval, planning, and construction process.
- 1-3
Bedrooms
- $ 118,000
Starting at
- $1,550/m²
Less than
What's not Included?
These items can be supplied by us on request.
The starter kit is designed to give you a strong, efficient foundation to build from, while keeping the interior fit-out flexible enough to suit your style, budget, and project goals. Items such as the concrete slab, floor coverings, kitchen, bathroom, laundry, plumbing, electrical installation, and painting are not included in the standard starter kit, but we can supply and coordinate these on request. Because these finishes can vary significantly from one project to the next, they are not included in standard price estimates.
Concrete Slab & Floor Coverings
The base slab, flooring, tiles, and other finished surfaces are not included in the starter kit.
Kitchen Fit-Out
Kitchen cabinetry, benchtops, sinks, tapware, and appliances are excluded from the base package.
Bathroom & Laundry Fit-Out
Bathroom fixtures, laundry cabinetry, tubs, and associated fittings are not included.
Plumbing & Electrical Installation
Plumbing, wiring, light fittings, switches, and final service connections are excluded.
Painting & Final Finishes
Internal and external painting, sealing, and other finishing works are not included in the standard price.
Why Choose ModSpan?
ModSpan offers a practical, modern, and cost-effective alternative to traditional housing. Built with a durable prepunched portal frame steel structure, these homes are designed to deliver strength, flexibility, and efficient construction while still allowing each home to be tailored to the needs of the owner.
One of the main advantages of a ModSpan home is the simple and efficient build process, which can help reduce both construction time and overall project costs. The open clearspan design also allows for flexible layouts, mezzanine options, and spacious living areas with high ceilings and natural light.
ModSpan is particularly well suited to coastal environments such as Norfolk Island, where durability, wind resistance, and low maintenance are important. The result is a home that combines practicality, long-term value, and architectural simplicity.










